R•E•D
ARCHITECTURAL DRAFTING
R•E•D
ARCHITECTURAL DRAFTING
RED Architectural is a small Calgary based business committed to providing its clients with architectural drawings to bring their renovation, building, project, or ideas to life. RED Architectural can guide you through your project from concept to reality, ensuring you have all the correct permits in place to avoid any problems during construction. If you need a building permit or development permit, no job is too small. RED Architectural has lots of experience in getting the right permits in place.
RED specializes in residential projects such as legalizing existing secondary suites, developing new secondary suites, decks, additions, and custom garages.
Contact us for a free consultation and proposal.





Design drawings can help explore different options for a project, prior to committing to more detailed drawings.
Some construction projects in Calgary require a development permit, dependent on land-use bylaw and regulations.
A building permit will be required for almost all types of construction projects.
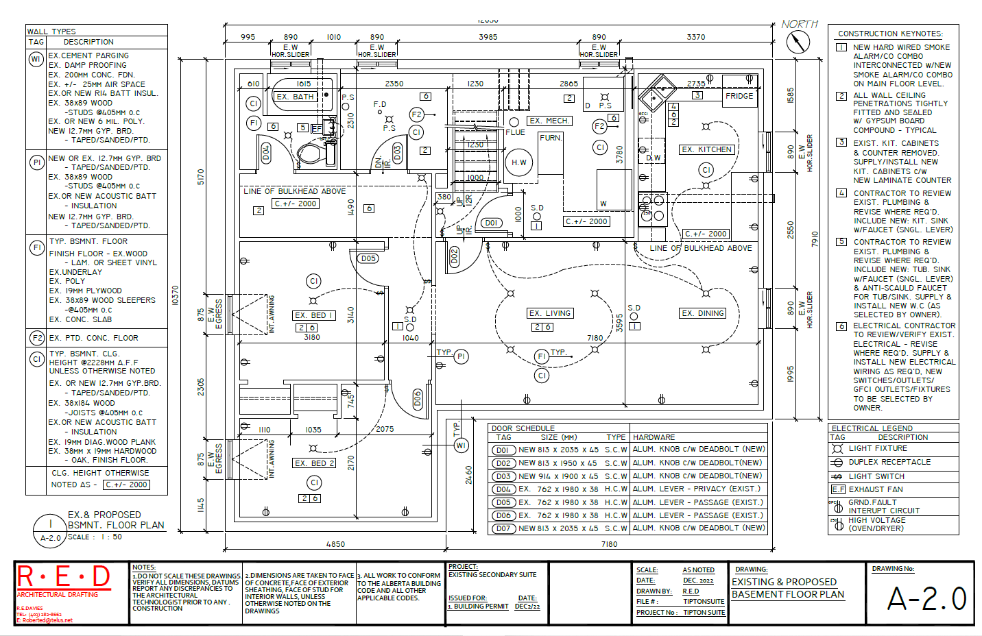
Accurate drawings of existing buildings are required for most renovation and development projects.
Commercial retail unit drawings are required for renovation and commercial lease spaces.
Schematic drawings are good for experimenting with different layouts; e.g., landscape and furniture.
Most types of architectural drawings are available upon request.
Please give us a call to review your project.
We will work with you to establish the best route forward in expediting your project.
